James Montana AIA James Montana AIA
CALL US 203.539.6656

Stamford
Nightclub

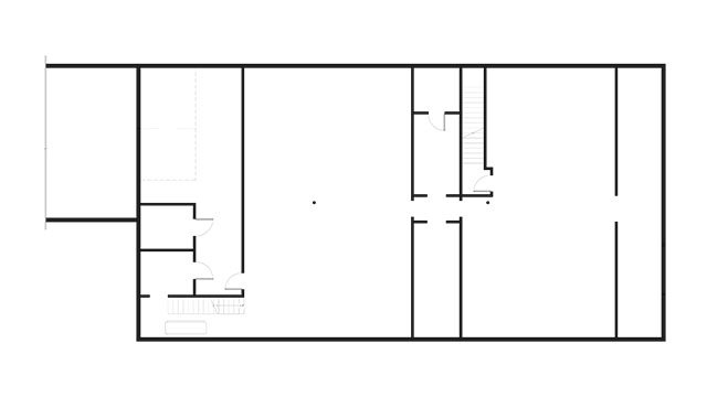
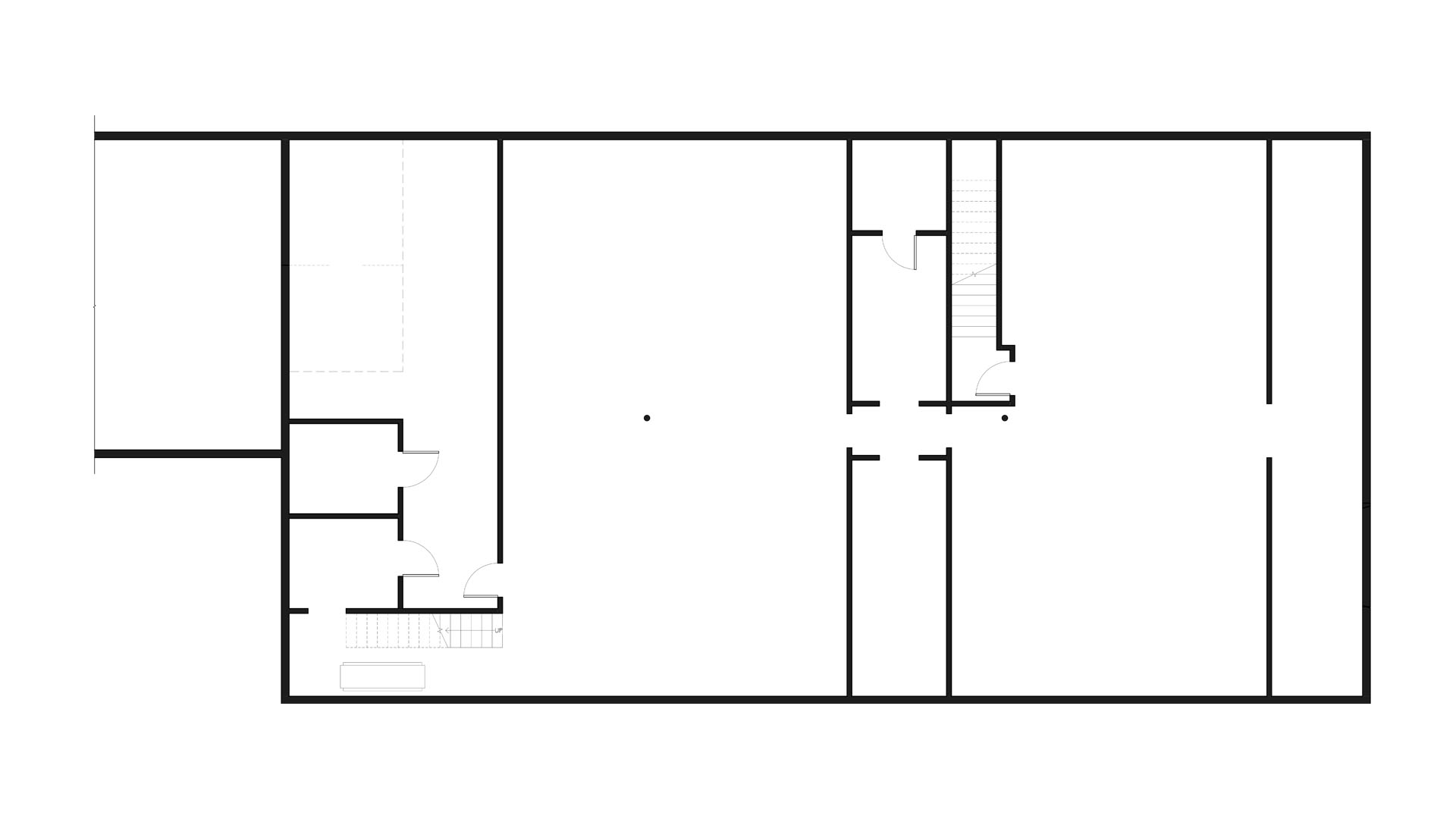
Interior of a Nightclub Renovation in Stamford, Connecticut

Project Information



About this project:


When a disaster strikes, our office is equipped to save the day. This nightclub in Stamford, CT suffered extensive fire damage. Working with regional contractors, the building department, and insurance companies, we were able to completely reimagine what a nightclub could be.

" This place is so cute. I love the artwork! "
- Google Review

This client led interior hospitality design project allowed us to a lot of different muscles. Collaboration, design, coordination for fire restoration, and many other skillsets were employed inorder to not only bring this space back to life, but to bring it to the next level in evening entertainment. The result was an exciting nightclub in the bustling downtown area of Stamford, CT.